Detail nebytu
Výběr jazyka:

Pronájem kanceláří ve 2. patře Bystřická 1709/9 (nabídka MHMP - TCP a. s.)

kancelář Pronájem nebytu Datum uveřejnění: 18.11.2025 Lhůta pro podání nabídky : Lhůta pro podání nabídky skončila

Adresa

Bystřická 1709/9, Praha 4
14000 Krč

Zobrazit na mapě

Poznámka

Prohlídku je možné domluvit s kontaktní osobou, viz "kontakt". Další odkaz: https://www.tcp-as.cz/pronajem/ Virtuální prohlídka: https://my.matterport.com/show/?m=6NudkmypKAD

Minimální cena

Poznámka k ceně

Pronájem formou výběrového řízení (nabídky uchazečů), viz odkazy.

Stav: před rekonstrukcí
Umístění/podlaží: 3.NP
Výtah:
Užitná plocha: 720 m2
Energetická náročnost budovy: G
Topení: ústřední dálkové
Rok výstavby: 1984
Propojení na úřední desku Další odkaz

Popis

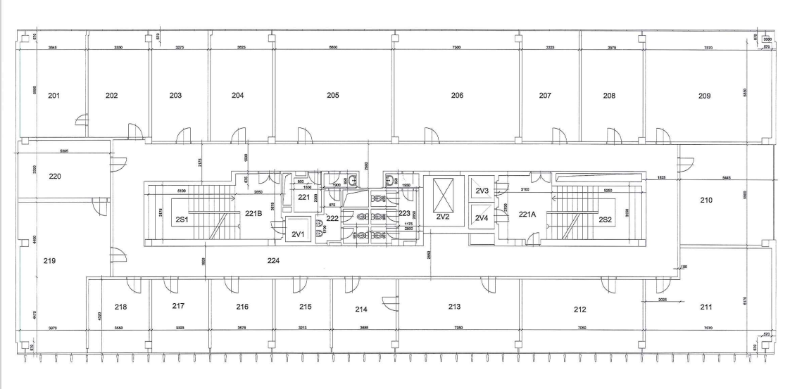
Hlavní město Praha nabízí k pronájmu kancelářské prostory o celkové výměře 719,88 m2 ve 2. patře objektu Bystřická 1709/9 v Praze 4. Jedná se o pronájem kanceláří různých velikostí od 11 m2 do 48 m2, které se nachází po celém obvodu budovy. Možnost dispozičních změn a úprav. Kancelářské prostory disponují vlastním sociálním zázemím. Ve vstupní hale je k dispozici vrátnice s dohledovou službou. Pronajímatel nabízí kancelářské prostory v původním stavu. Vzhledem k předpokládané změně využití celé stavby v budoucnu nebude pronajímatelem provedena rekonstrukce prostor. Zálohové platby na služby zahrnují náklady na teplo, teplou vodu, vodné stočné, provoz výtahu, úklid společných prostor, společnou elektřinu, odvoz odpadu. Jedná se o objekt, který byl původně postavený pro potřeby České pošty v roce 1984. Lokalita v okolí stanice metra trasy C Pankrác poskytuje nájemcům výbornou dostupnost MHD tramvají i autobusem a kompletní infrastrukturu. V současné době probíhá v bezprostředním okolí budovy výstavba nové trasy metra D.

Zobrazit více

Další nabídky podobné této


Žádné podobné nabídky

Zpět do předchozí sekce